00件
最近見た物件
00件
検討リスト
名古屋市の仲介手数料無料の新築一戸建て情報 > 物件カタログ > みよし市莇生町原29-7『仲介料無料』新築戸建て
当物件をご覧いただき有り難うございます!
こちらの新築戸建ては仲介手数料が無料になっている優良な物件です。お部屋のほうもいつでもご案内もさせて頂きますのでお気軽にお問合せ下さい。
なお僅差で物件がなくなる又は商談が入ってしまう場合もございますので、その際はご了承下さいませ。
※価格の変更(値引き等)、更新作業が間に合っていない場合がございます。価格がご不明な場合はお気軽にお問合せ下さいませ。(仲介手数料無料分を価格に上乗せはしておりませんのでご安心ください)
◆みよし市莇生町原29-7でのマイホーム購入で費用を少しでも安くしたいとお考えでしたら★【仲介手数料無料】★★のロイホームズ不動産がオススメ!
★【仲介料オフ物件】を希望の方が増えています!
~~~~~~~~~~~~~~~~~~~~~~~~~~~~~
仲介手数料が無料の物件で、物件価格が2500万円の場合、仲介料★85.05万円が不要に! 3000万円の物件の場合では★100.8万円が不要! とってもお得にご購入ができるうえ、節約できた資金でいろいろと必要なものも買えてしまう嬉しいサービスです♪♪ [ご購入お手続きは通常と同様ですのでご安心を]
※当ホームページに掲載が間に合っていない物件があるかもしれません。気になる物件を見かけた際は“所在地や物件名(建築会社名)などを指定”してお問い合わせ下さいませ。「仲介料オフ診断」後、ご連絡をさせていただきます。
※写真や図と実際の現状とが異なる場合は現状を優先させていただきます。
1件
| 区画 | 価格 | 間取り | 建ぺい率/容積率 | 建物面積 | 土地面積 | 詳細 | お問い合わせ |
|---|---|---|---|---|---|---|---|
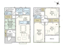
| 1号棟 | 3,399万円 | 3LDK |
60%/200% | 96.51㎡ | 105.38㎡ | 詳細を見る | お問い合わせ |
| 所在地 | 愛知県みよし市莇生町原29-7 | ||
|---|---|---|---|
| 交通 | |||
| 価格 | 3,399万円 | 築年月(築年数) | 2026年 3月( 新築 ) |
| 建物面積/坪数 | 96.51㎡/29.19坪 | 土地面積/坪数 | 105.38㎡/31.87坪 |
| 種別/構造 | 新築一戸建 / 木造 | 地目 | 宅地 |
| 取扱会社 |
|
||
※地図上に表示される物件の位置は付近住所に所在することを表すものであり、実際の物件所在地とは異なる場合がございます。
ロイホームズ不動産(有限会社ネスコ)
〒468-0011
愛知県名古屋市天白区平針2丁目1010 第一小島ビル 201
10:00~18:00 定休日:毎週水曜日
愛知県みよし市三好町八和田
名鉄豊田線「日進」駅 徒歩60分
予定
愛知県みよし市西陣取山
名鉄豊田線「日進」駅 徒歩61分
新築
愛知県みよし市福田町屋敷浦
名鉄名古屋本線「豊明」駅 徒歩71分
新築
ロイホームズ不動産(有限会社ネスコ)
2026-04-19
愛知県みよし市福田町屋敷浦5-1
名鉄名古屋本線「豊明」駅 徒歩71分
新築
2026-04-19
愛知県みよし市福田町屋敷浦5-1
名鉄名古屋本線「豊明」駅 徒歩71分
新築
2026-04-19
愛知県みよし市西陣取山69-1
名鉄豊田線「日進」駅 徒歩61分
新築

みよし市莇生町原29-7『仲介料無料』新築戸建てに関するこだわり条件から探す
みよし市以外の市区町村から探す
みよし市にある駅から探す