00件
最近見た物件
00件
検討リスト
名古屋市の仲介手数料無料の新築一戸建て情報 > 物件カタログ > 春日井市妙慶町2丁目113『仲介料無料』新築戸建て > 3号棟
★【おすすめ物件】★新築戸建【仲介手数料無料!】 制震構造★ 建設住宅性能評価★
追焚機能 浴室乾燥暖房 トイレ2ヶ所 温水洗浄便座 洗髪洗面化粧台 3口以上コンロ カウンターキッチン システムキッチン 浄水器 床下収納 複層ガラス モニタ付インターホン 駐車場2台 【建築会社】(株)アーネストワン クレイドルガーデン☆













(※元利均等方式 金利5.00%まで ※返済年数5~50年まで入力できます)
(※ボーナスは年2回で計算しています。1000万円まで入力できます)
(※物件購入時、その他諸費用が発生する場合がございます)
| 所在地 | 愛知県春日井市妙慶町2丁目113 | ||
|---|---|---|---|
| 交通 | |||
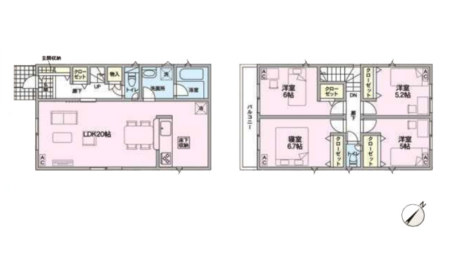
| 間取り/詳細 | 4LDK/ | 建物面積(坪数) | 97.20㎡(29.4坪) |
| 価格 | 3,090万円 | ||
| 駐車場/月額料金 | 有/- | ||
| 土地の敷金/保証金 | -/- | 借地料/借地期間 | -/- |
| 土地権利 | 所有権 | 土地面積(坪数) | 153.28㎡(46.36坪) |
| 傾斜地部分面積 | - | 路地状敷地 | - |
| 私道負担面積/セットバック | -/- | 高圧線下面積 | - |
| 地目/地勢 | 宅地/- | 接道状況 | -(北西 8.0m) |
| 建ぺい率/容積率 | 60%/200% | 用途地域 | 第一種住居 |
| 都市計画 | 市街化区域 | 種別/構造 | 新築一戸建/木造 |
| 階建 | 2階建 | 築年月(築年数) | 2025年 11月 (新築) |
| 総区画数/販売区画数 | -/3区画 | 向き | - |
| 現況 | 完成済み | その他の法令上の制限 | - |
| 取引態様/引渡時期 | 仲介/即時 | 建築確認番号 | 第HPA-25-08166-1号 |
| 物件番号 | 99794812 | 取引条件の有効期限 | 2026年02月12日 |
| 設備条件 |
|
||
| 備考 |
新築戸建て◆春日井市妙慶町2丁目113でのマイホーム購入で費用を少しでも安くしたいとお考えでしたら★【仲介手数料無料】★★のロイホームズ不動産がオススメ! 3090万円の物件の場合では仲介手数料約★109万円が無料に!とってもお得にご購入ができるうえ、節約できた資金でいろいろと必要なものを買えてしまうのは家計にも財布にも嬉しいですよね♪[ご購入お申込みからお引渡しまでのお手続きは通常と同じスケジュールで進めて参りますのでご安心くださいませ] 只今ご購入者様には、な・なんと5万円のお買物券プレゼントキャンペーンも実施中!!(詳細はTOPページの更新情報を見てね☆)お財布にとってもエコなロイホームズでいっぱいいっぱいお得をGETしちゃってください☆ |
||
| 取扱会社 |
|
||
| QRコード |
このQRコードを読み取ることで、スマホでも物件情報を確認できます。 |
||
※地図上に表示される物件の位置は付近住所に所在することを表すものであり、実際の物件所在地とは異なる場合がございます。
春日井市妙慶町2丁目113『仲介料無料』新築戸建てに関するこだわり条件から探す
春日井市以外の市区町村から探す
春日井市の町名から探す